Welcome to CAD WEST

At CadWest.net, we specialize in providing high-quality drafting services to bring your projects to life. Our team of experts is dedicated to delivering precision and accuracy in every design.

Services

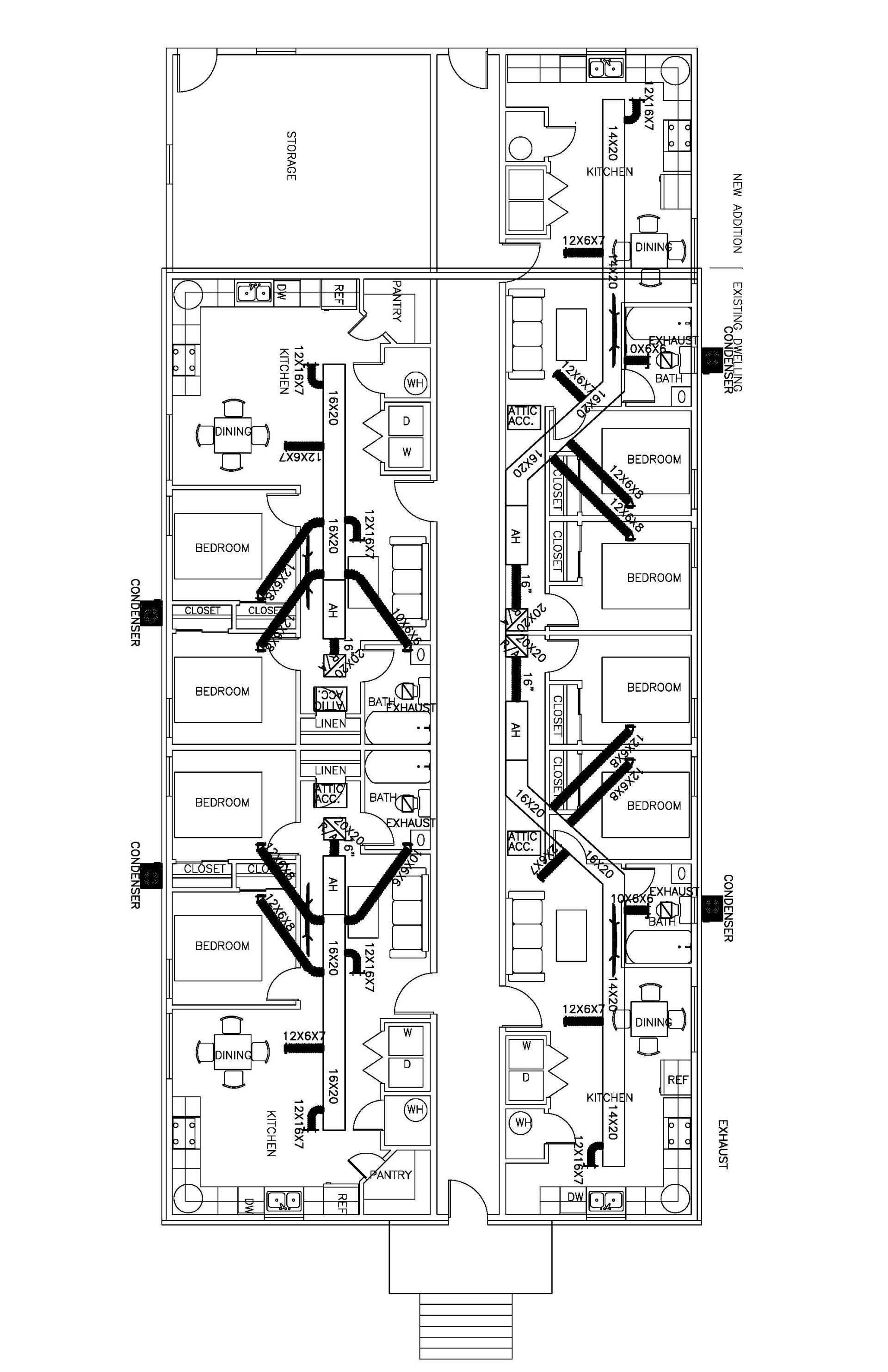
Architectural Drafting

Precision architectural drafting with detailed floor plans and elevations.

Structural Drafting

Accurate structural schematics and layouts to meet project needs.

 

Mechanical Drafting

Efficient mechanical drafting for optimal functionality in designs.

Manufactured Home

Foundation Plans

CAD WEST creates all types of Engineered and Stamped Permanent foundation plans for Manufactured Housing that can be approved for Land/Home Loans 

Frequently Asked Questions

What industries do you provide drafting services for?

We provide drafting for industries such as Architecture, Civil Engineering, Manufactured Housing Industry and Construction. We have engineers that can stamp any project. We also provide drafting services for Carports, Awnings, home additions (including Mother-in-law Suites). Theres not much we can't draw. Bring in your sketch on a napkin and we can draw it from there

What software do you use for drafting?

We use industry-leading and latest software such as AutoCAD for all of our drafting projects.

How long does it typically take to complete a drafting project?

The timeline for completing a drafting project varies depending on the scope and complexity of the design. In some cases such as Manufactured Foundation Plans, can be turned around in about an hour. Other more complex drawings, depending on the information gathered could take longer. Our goal at CAD WEST is fast and completely error free drawings.

As a former Building Inspector, I know the codes that will help you get your drawings approved by the municipality.

“Working with cadwest.net was a seamless experience. Their attention to detail and quick turnaround time exceeded my expectations. I highly recommend their services.”

John Smith

Contact us

Feel free to reach out to us for all your architectural, mechanical, and electrical drafting needs. We are here to help!

Location

Cad West.net

2726 N. Lovington Highway
Hobbs, New Mexico, United States

About us

Cad West is a veteran-owned drafting business based in Hobbs, New Mexico. With a commitment to precision and excellence, we take pride in delivering high-quality drafting services to our clients. We've been in business for over 25 years serving the general public and engineers with excelent service.